배치도
배치도
조감도
조감도
 조감도
조감도
웰컴센터 _ 투시도
웰컴센터 _ 투시도
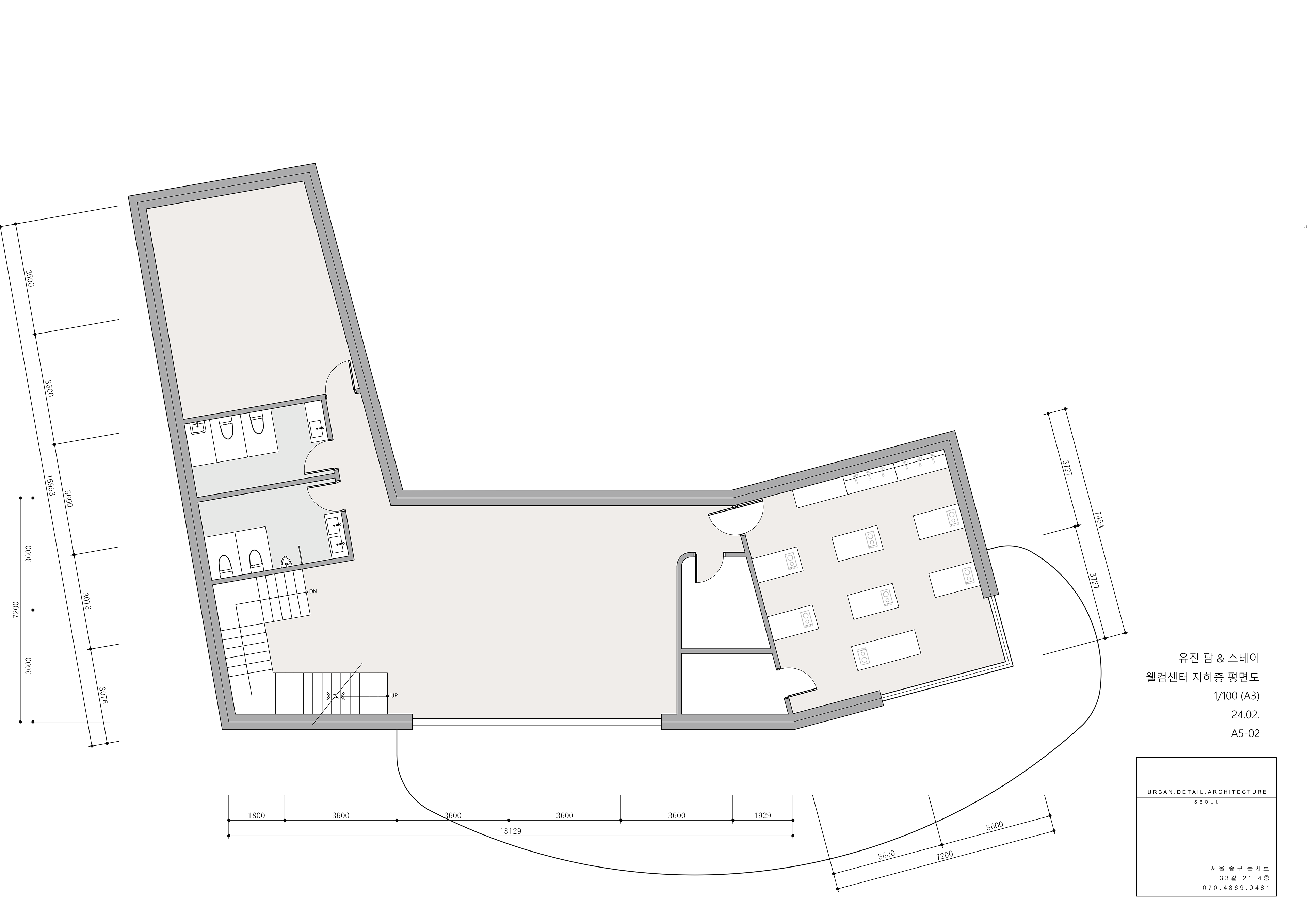
웰컴 센터 _ 지하 1층 평먼도
웰컴 센터 _ 지하 1층 평먼도
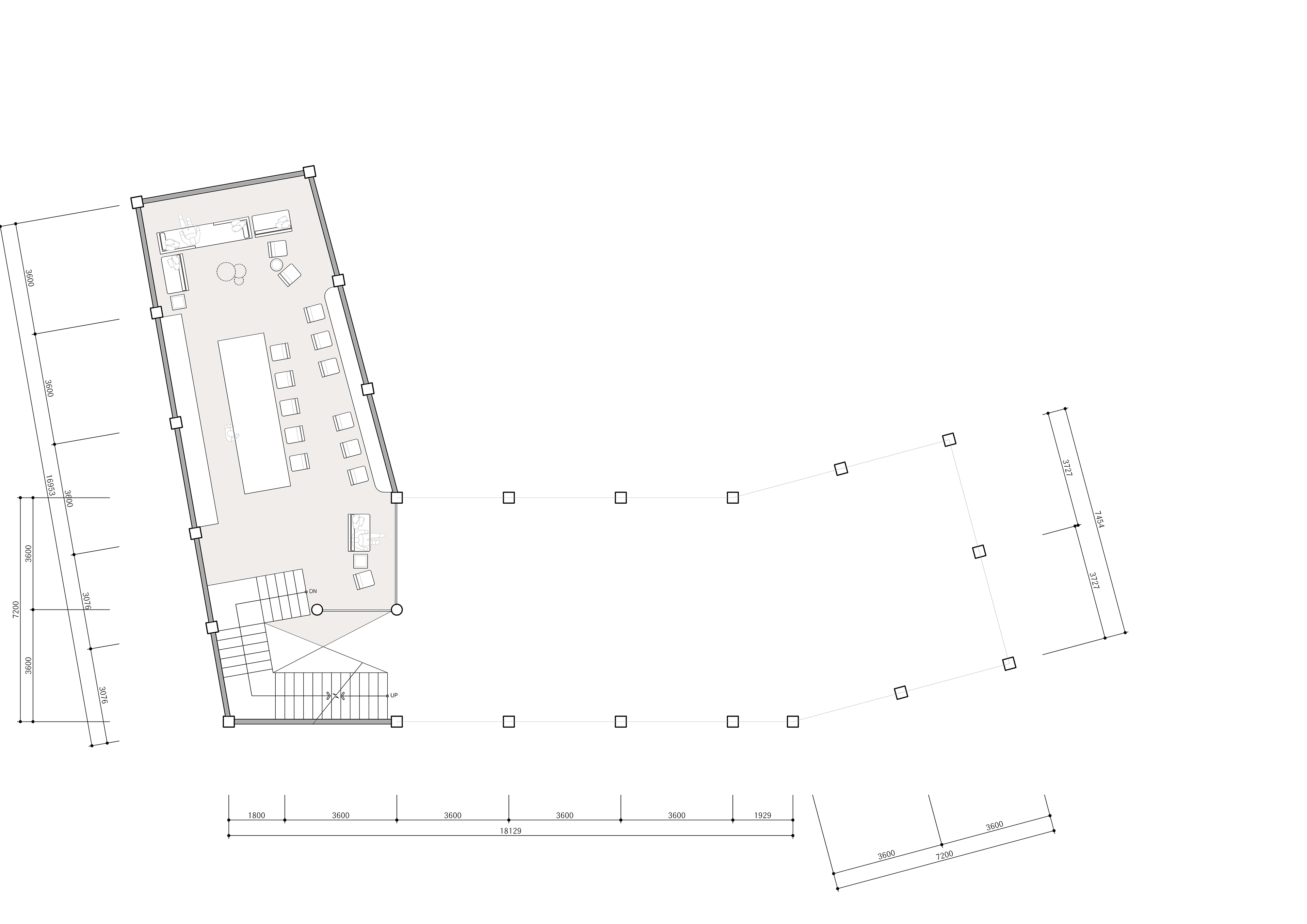
웰컴 센터 _ 지상 1층 평먼도
웰컴 센터 _ 지상 1층 평먼도
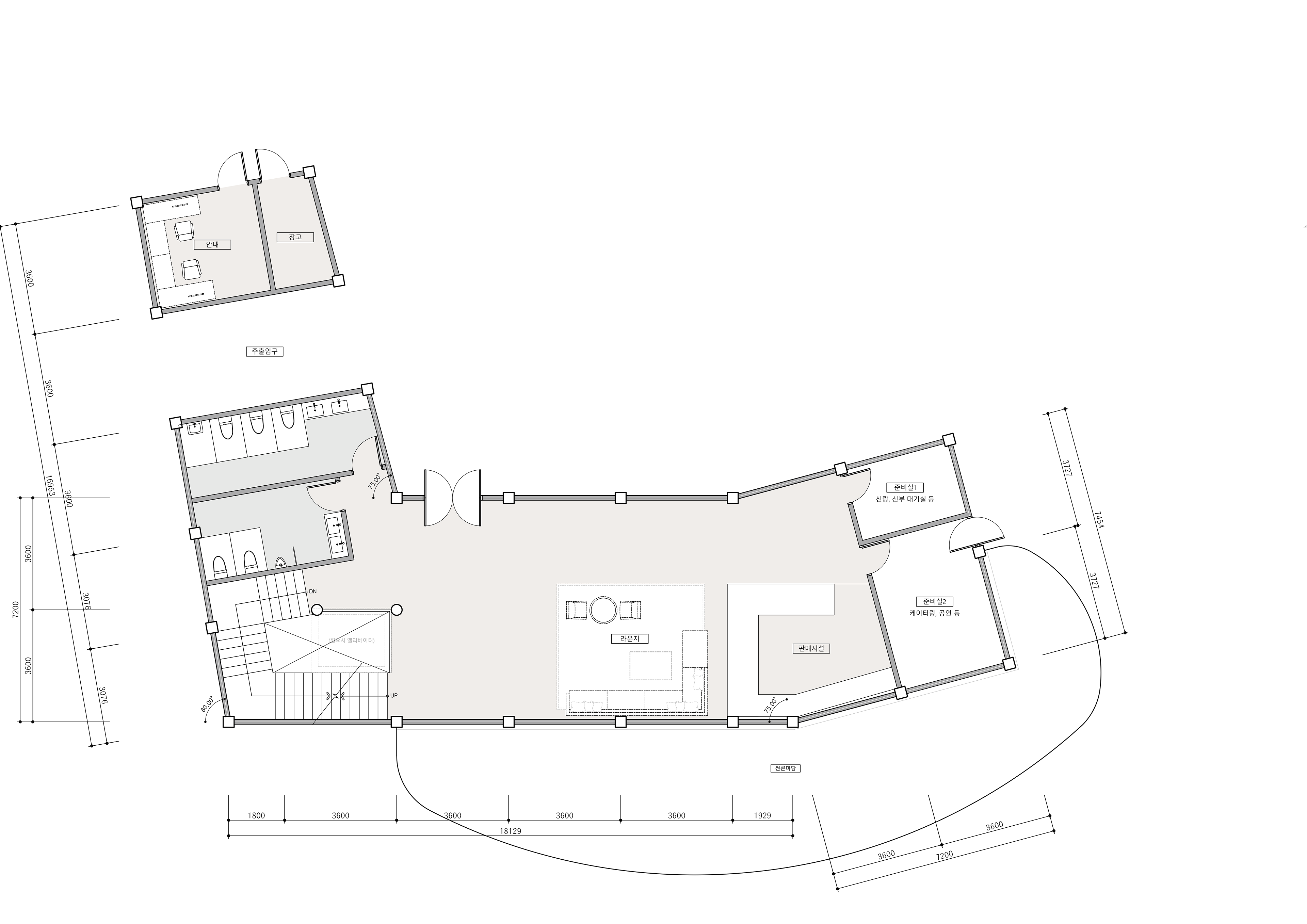
웰컴 센터 _ 지상 2층 평먼도
웰컴 센터 _ 지상 2층 평먼도
주택(대)  _ 투시도, 조감도
주택(대) _ 투시도, 조감도
주택(중) _ 투시도
주택(중) _ 투시도
주택(소) _ 투시도
주택(소) _ 투시도
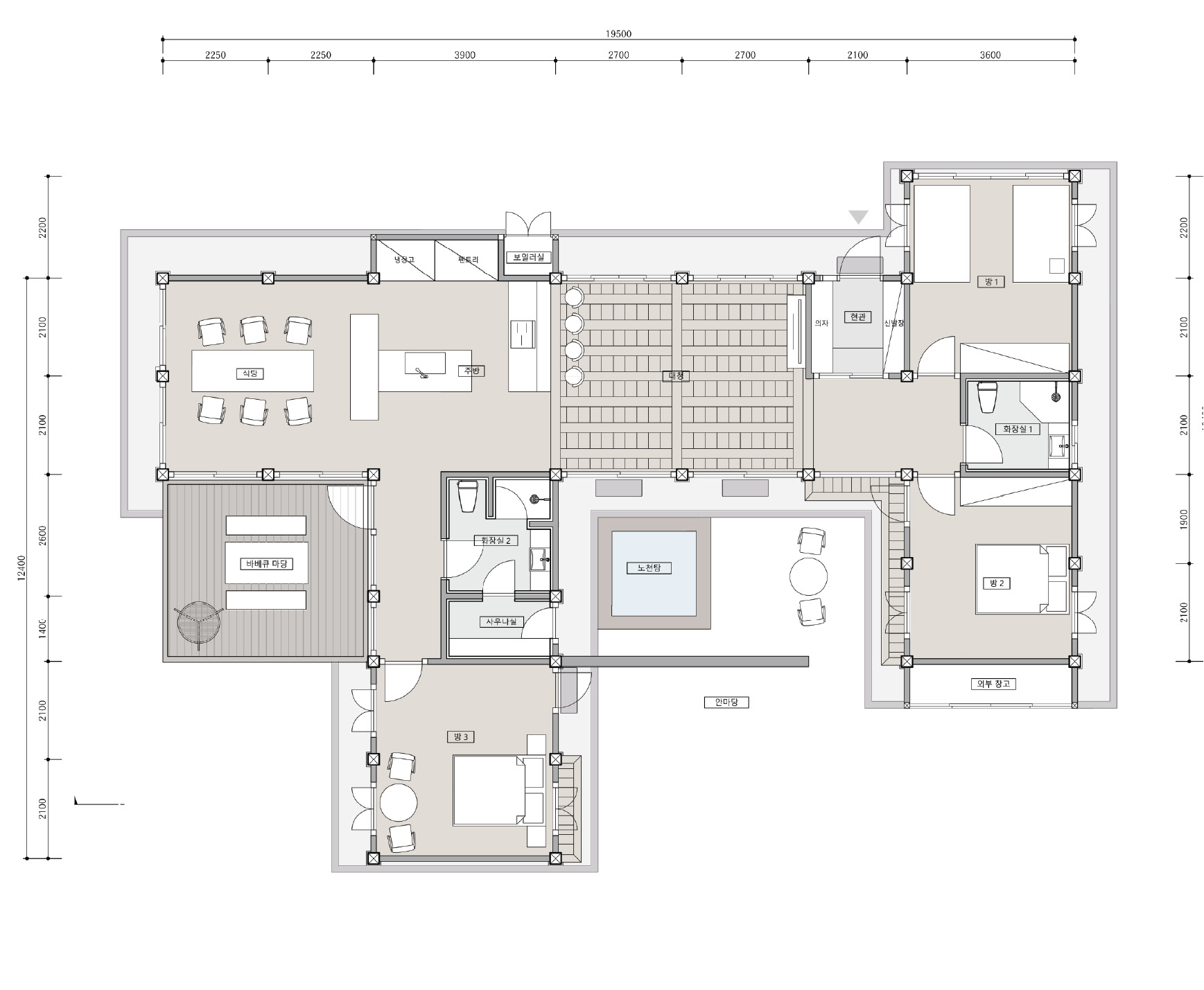
주택(대) _ 평면도
주택(대) _ 평면도
주택(중) _ 평면도
주택(중) _ 평면도
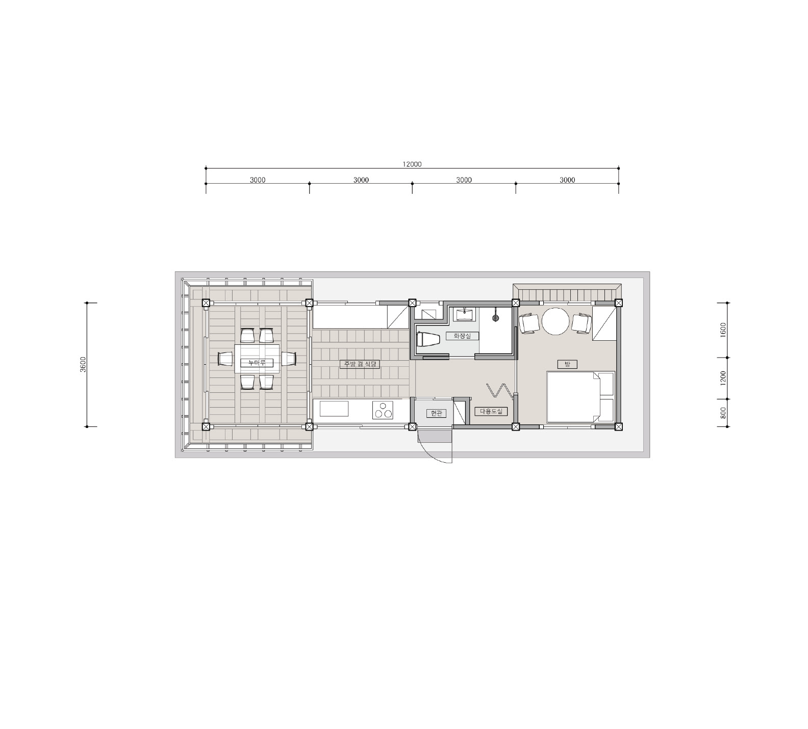
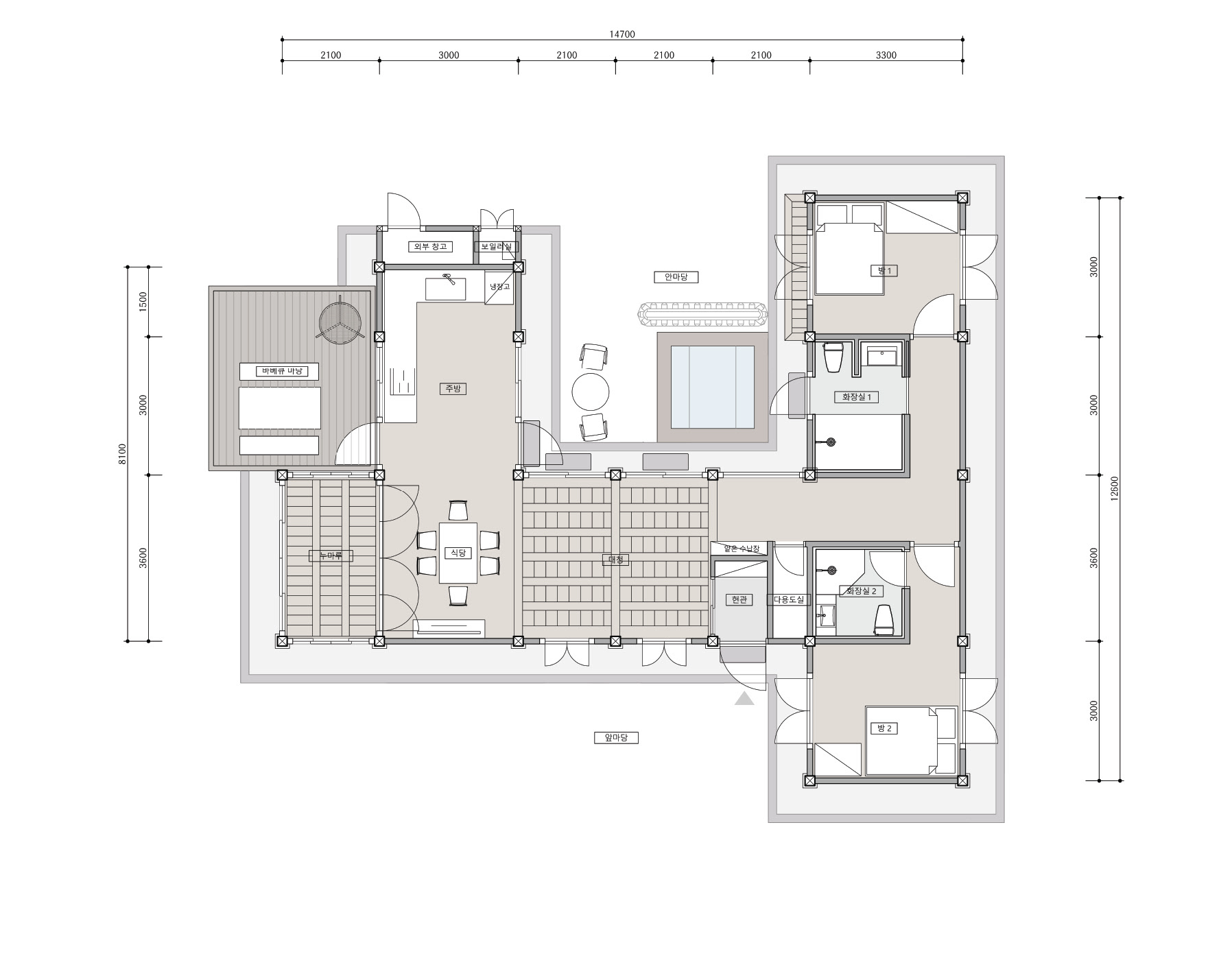
작은주택(소) _ 평면도
작은주택(소) _ 평면도
도미토리 _ 투시도
도미토리 _ 투시도
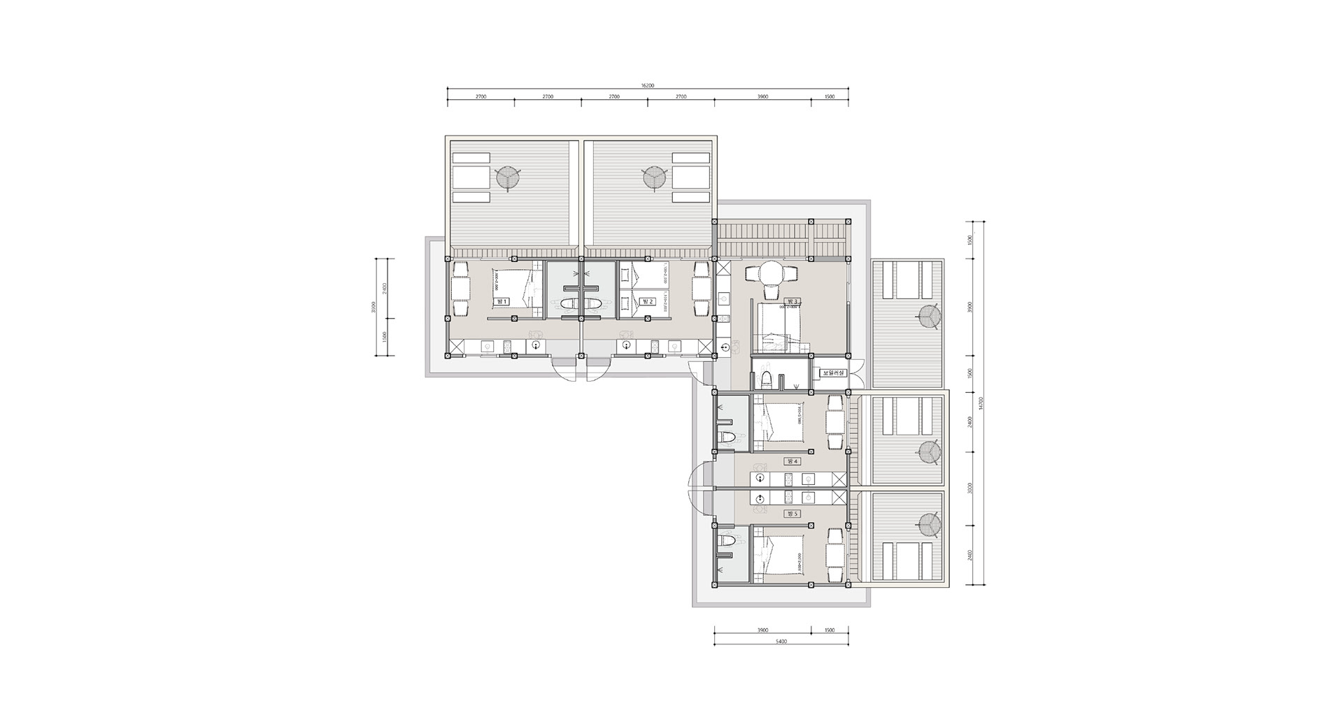
도미토리 _ 평면도
도미토리 _ 평면도
Back to Top