삼청동 한옥 식당부
삼청동 한옥 식당부
프로젝트명 : 삼청동한옥
구          분 : 단독주택_대수선 및 증축
주          소 : 서울 종로구 삼청동
대 지 면 적 : 135.9㎡
연   면   적 : 80.68㎡ (24.4평)
연          도 : 2023.07 ~ 2025.05
담          당 : 최지희, 텐들러다니엘, 김주희
시          공 : 정승호
사          진 : 이상훈 Hooxme 

삼청동 한옥 _ 도시한옥의 고요한 진화
​​​​​​​'삼청동 한옥'은 북촌 한옥마을 내에서도 관광객으로 붐비는 중심 거리에서 한 걸음 들어간 조용한 골목에 자리하고 있습니다. 도심의 소란에서 벗어나 북촌에서 드물게 고요한 정취를 간직한 곳입니다. 서울 도심 한가운데 위치하면서도 일상에서 비켜난 듯한 고요함과 따뜻함을 담아낸, 복잡한 도시 속 '쉼표' 같은 공간입니다. 하지만 이 고요한 입지 이면에는 주변 건물로 인한 채광의 한계라는 과제 또한 존재했습니다. 빛을 오롯이 중정(마당)을 통해 유입시켜야 하는 명확한 조건 속에서, 내부의 어두움을 해소하고 밝은 공간을 회복하는 것이 본 프로젝트의 핵심이었습니다.
삼청동 한옥 배치 _ 렌더링
삼청동 한옥 배치 _ 렌더링
삼청동 한옥 골목 전경
삼청동 한옥 골목 전경
삼청동 한옥 대문 전경
삼청동 한옥 대문 전경
보통의 도시한옥의 확장성 _ 한계와 확장의 경계
본래 이 한옥은 1920년대 후반 도시개발기에 조성된 전형적인 도시 한옥으로, 약 41평의 협소한 대지에 17평 규모의 'ㄷ'자형 구조를 가지고 있었습니다. 한정된 면적 안에 건축주의 요구 프로그램을 수용하기 위해, 내부 공간의 수평적 확장과 개방감 확보를 주요 설계 전략으로 삼았습니다. 대청 영역을 안마당 쪽으로 확장해 평면적 여유를 확보하는 동시에, 마당의 공간감이 축소되는 것을 보완하기 위해 증축부에 유리 천창과 전면 창호를 계획했습니다. 이를 통해 실내에서도 마당을 향한 넓은 개방감을 느낄 수 있도록 했습니다.
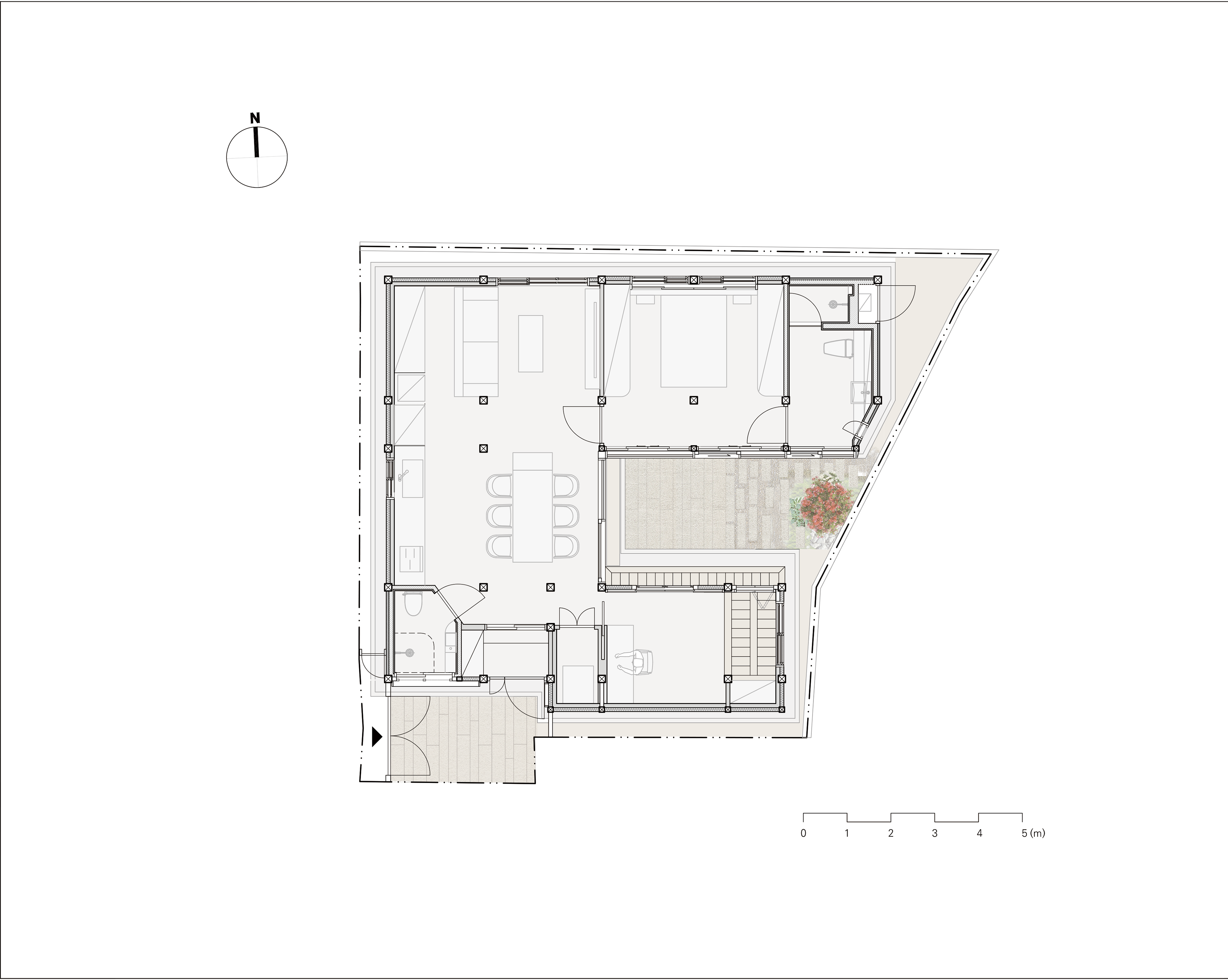
삼청동 한옥 계획평면도
삼청동 한옥 계획평면도
삼청동 한옥 계획 지붕 평면도
삼청동 한옥 계획 지붕 평면도
삼청동 한옥 식당부 1
삼청동 한옥 식당부 1
삼청동 한옥 현황 평면도
삼청동 한옥 현황 평면도
삼청동 한옥 현황 지붕 평면도
삼청동 한옥 현황 지붕 평면도
삼청동 한옥 식당부 2
삼청동 한옥 식당부 2
삼청동 한옥 식당부 3
삼청동 한옥 식당부 3
고양이와 함께하는 삶 _ 반려동물을 위한 적응형 설계
건축주는 노묘(老猫) 한 마리와 함께 생활하고 있으며, 설계 전반에 걸쳐 반려묘와의 공존이 중요한 고려사항이었습니다. 안방 출입만 제한하고, 거실, 서재, 주방, 나아가 마당까지 고양이의 자유로운 놀이터가 될 수 있도록 계획했습니다. 
거실에는 고양이의 수직 동선 확보를 위한 캣 타워를 벽면에 설치하고, 주방 상부장과 연등천장 사이의 틈을 열어 고양이가 자유롭게 이동할 수 있는 동선을 제공했습니다. 외부 공간과 실내를 연결하는 부위에는 네트망을 통한 안전한 외부 노출 영역을 확보하고, 각 실의 출입문에는 캣도어를 설치하여 동선의 독립성을 부여했습니다. 스크래치로 인한 마감재 손상을 최소화하기 위해 창호지는 내구성이 높은 아크릴 한지로 대체하고, 주요 기둥 일부에는 스크래쳐 기능을 겸한 마감재를 적용하는 등 반려동물의 행동 특성에 따른 소재 선택과 공간 기획이 반영되었습니다.
삼청동 한옥 서재 _ 누마루
삼청동 한옥 서재 _ 누마루
삼청동 한옥 현관 _ 신발장
삼청동 한옥 현관 _ 신발장
전통 한식목구조 속에서의 현대 건축의 접점
본 프로젝트는 기존 한옥의 구조와 형식을 유지하면서도, 현대적 거주 방식에 맞춘 증축을 동시에 고려했습니다.
식당부는 기존 목구조를 연장하여 각서까래를 얹고 유리 천창을 설치해 채광과 수직적 개방감을 확보했습니다. 안방부는 마당쪽으로 전면 반침을 증축하여 별도의 복도 동선을 마련했습니다. 한옥은 구조적으로 목재 보호를 위해 깊은 처마가 필수적입니다. 하지만 협소한 중정에서 처마가 길어지면 하늘이 좁아지고 공간이 답답해지는 문제가 있었습니다. 이를 해결하기 위해, 증축부 정면을 시스템 창호로 구성한 전면 유리 파사드로 설계하고, 짧은 현대식 금속 처마를 적용했습니다. 그 결과, 밝고 투명한 실내 환경을 확보하는 동시에 중정 위로 열린 하늘을 그대로 보존할 수 있었습니다.
내부 인테리어 역시 목구조를 필요한 부분에만 노출하고 나머지는 간결하게 마감하여, 전통 구조의 미(美)와 현대 공간의 시각적 간결함이 공존하도록 했습니다.
삼청동 한옥 안마당 1
삼청동 한옥 안마당 1
삼청동 한옥 안마당 2
삼청동 한옥 안마당 2
삼청동 한옥 안마당 3
삼청동 한옥 안마당 3
삼청동 한옥 공사전 입면도 1
삼청동 한옥 공사전 입면도 1
삼청동 한옥 공사전 입면도 2
삼청동 한옥 공사전 입면도 2
삼청동 한옥 공사전 단면도 1
삼청동 한옥 공사전 단면도 1
삼청동 한옥 공사후 입면도 1
삼청동 한옥 공사후 입면도 1
삼청동 한옥 공사후 입면도 2
삼청동 한옥 공사후 입면도 2
삼청동 한옥 공사후 단면도 1
삼청동 한옥 공사후 단면도 1
삼청동 한옥 안방 1
삼청동 한옥 안방 1
삼청동 한옥 안방 2
삼청동 한옥 안방 2
삼청동 한옥 화장실 1
삼청동 한옥 화장실 1
삼청동 한옥 화장실 2
삼청동 한옥 화장실 2
Back to Top