프로젝트명: 백제고도 내 공공한옥(백제관) 건립사업
 계획 : 어번디테일 건축사사무소, 아키플레이 건축사사무소
 주소 : 충남 부여군 부여읍 군수리                                                                                             용도 : 문화 및 집회시설                                                                                                             지역지구 : 자연녹지지역, 역사문화환경 보존지역
 대지면적 : 9,946m2                                                                                                              건축면적 : 2275.94m2                                                                                                            연면적 : 2275.94m2                                                                                                                 규모 : 지상 1층   
조감도
조감도
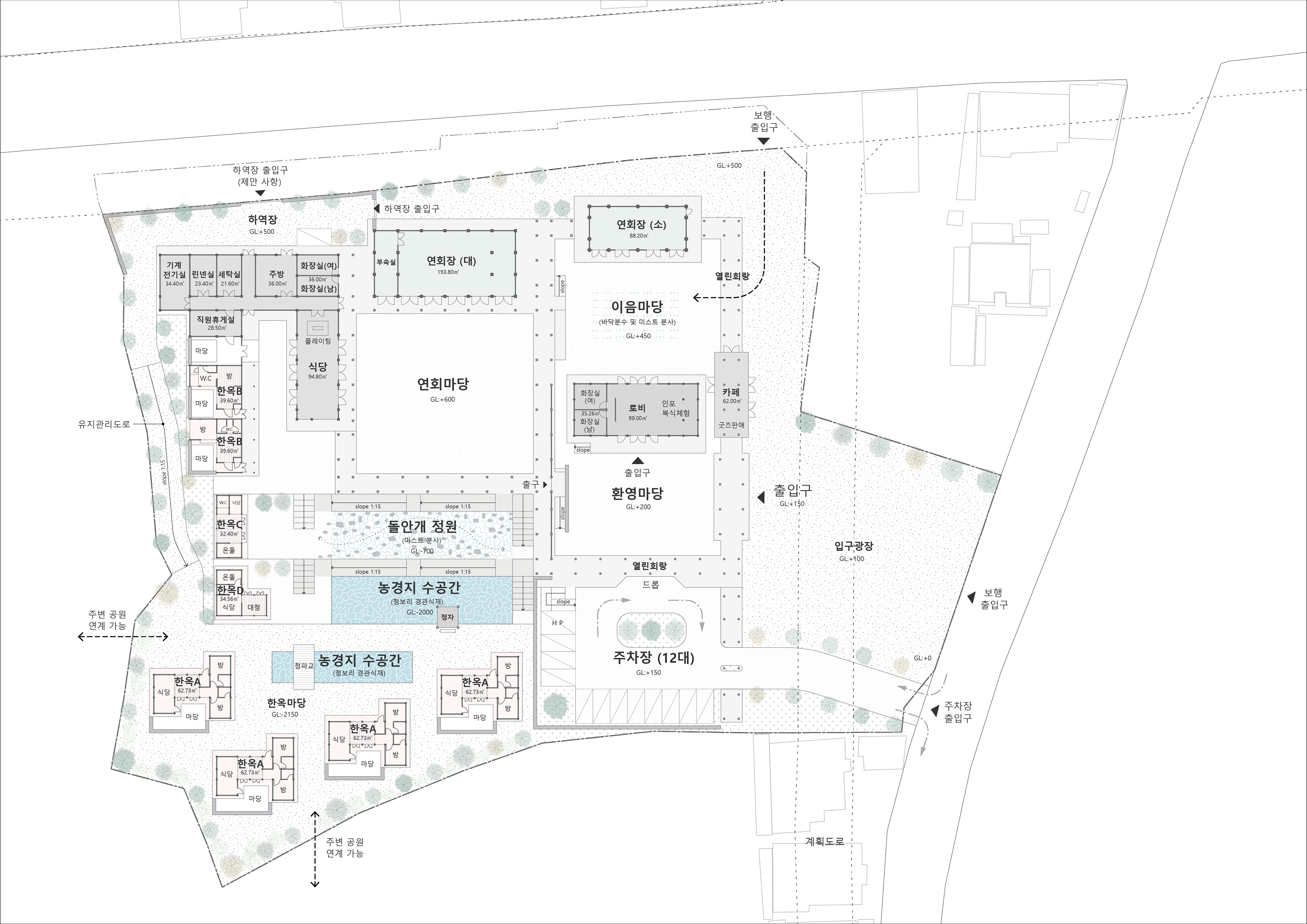
배치도
배치도
평면도
평면도
투시도 _ 회랑
투시도 _ 회랑
투시도 _ 한옥단지 중심 수변공간
투시도 _ 한옥단지 중심 수변공간
투시도 _ 수변공간
투시도 _ 수변공간
투시도 _ 소연회장
투시도 _ 소연회장
투시도 _ 연회장
투시도 _ 연회장
입면도
입면도
단면도
단면도
Back to Top